
Grassinger Emrich Architekten GmbH
Neubau
2027
Clusterwohnen
Poing
Neubau
21
BGF: 1075m²
Markantes Eingangsportal und gemeinschaftliches Wohnen
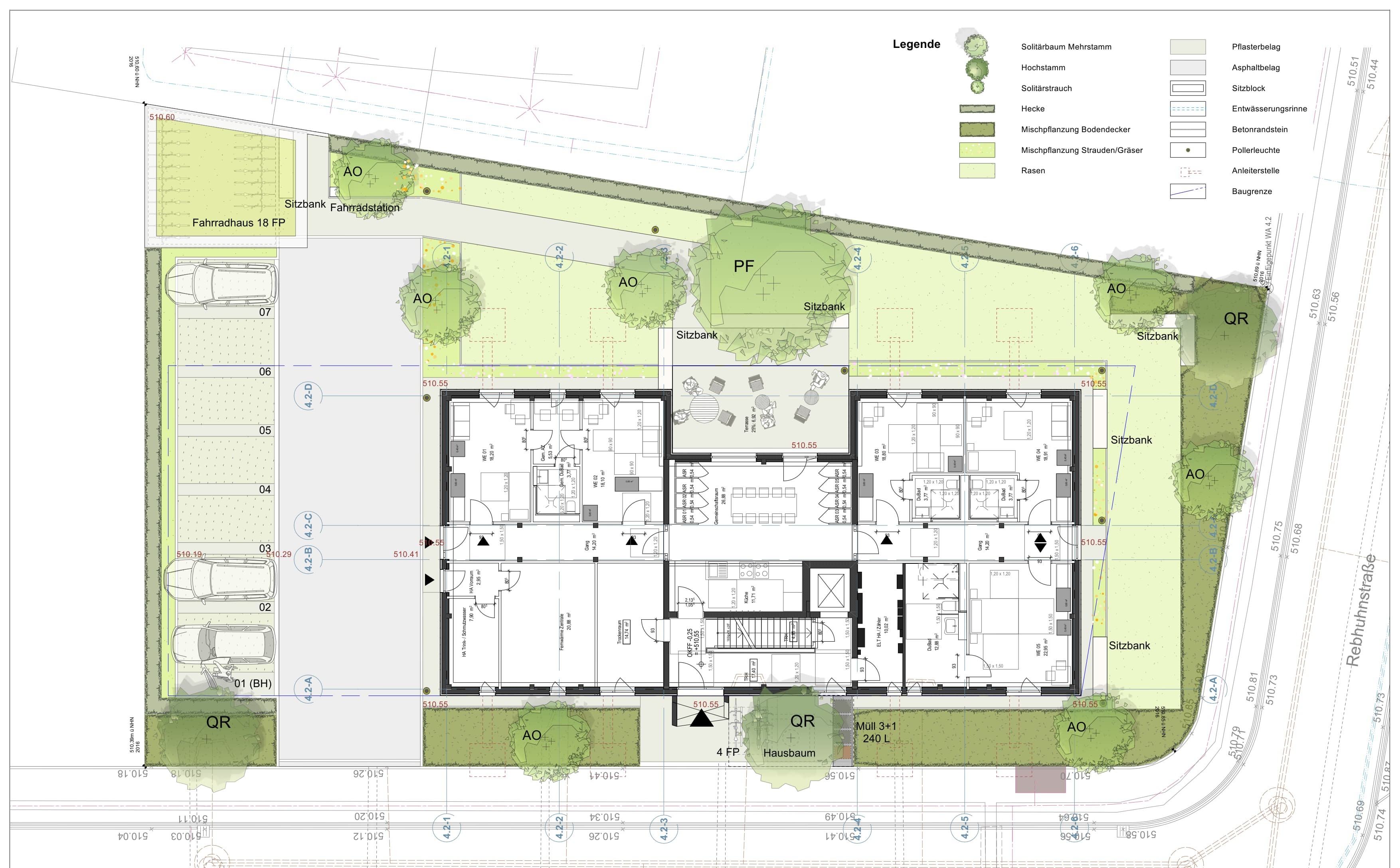
Das Clusterwohnheim wird an der Rebhuhnstraße im Norden von Poing realisiert und gliedert sich als kompakter Baukörper in die Umgebung ein. Die Erschließung erfolgt über ein markantes, dreigeschossiges Eingangsportal, das als identitätsstiftendes Element die Adresse des Hauses betont. Die einzelnen Cluster-Wohneinheiten sind um einen gemeinschaftlich genutzten Bereich organisiert. Dieser beherbergt eine Gemeinschaftsküche mit Gemeinschaftraum und angrenzendem Freiraum.
Holzhybridbau
Das Cluster-Wohnheim wird als Holzhybridbau ohne Kellergeschoss errichtet. Die tragende Struktur besteht aus Stahlbeton, während die weiteren Bauelemente als Holzelemente ausgeführt werden. Diese Bauweise vereint Langlebigkeit mit einem hohen Anspruch an Ökologie und Wohnqualität und ermöglicht zugleich eine effiziente Bauabwicklung.

Grassinger Emrich Architekten GmbH | L+P Landschaftsarchitekten GmbH
Holzfassade mit warmen Akzenten
Die Architektur zeichnet sich durch eine vertikale Holzfassade mit drei unterschiedlich breiten Lattungen aus. Die variierende Breite der Lattung verleiht dem Baukörper eine lebendige Struktur. Farblich wird die Fassade in einem warmen Gelbton gestaltet und durch grüne Akzente ergänzt. Die farbliche Gestaltung nimmt Bezug auf bestehende Gebäude und schafft zugleich ein eigenständiges Erscheinungsbild. Das Farbkonzept findet sich auch in den Innenräumen, beispielsweise bei Treppengeländern und Innentüren, wieder. Eine extensive Dachbegrünung ergänzt das Fassadenkonzept und trägt zur ökologischen Qualität des Projekts bei.
Gemeinschaftliche Freiräume und reduzierte Versiegelung
Das Freiraumkonzept legt besonderen Wert auf die Reduzierung der Flächenversiegelung. Durch eine gemeinsam genutzte Zufahrt zu den Stellflächen wird der Versiegelungsgrad des Grundstücks deutlich reduziert. Jede Wohneinheit verfügt über einen gemeinschaftlich genutzten Balkon bzw. eine Terrasse. Diese Bereiche schaffen Möglichkeiten für Begegnung und gemeinschaftliches Wohnen im Freien.
